Guía Completa para Proyectos de Construcción en Tijuana: Innovación y Eficiencia desde el Anteproyecto hasta la Ejecución
ArquinoBC
Para aquellos que sueñan con construir su casa ideal o desean desarrollar un espacio comercial en Tijuana, comprender los pasos fundamentales en la construcción es vital. Esta guía, enfocada en la innovación y eficiencia, ofrece una ruta detallada para conocer el proceso de construcción en Tijuana, facilitada por la experiencia y el soporte de ArquinoBC.
El anteproyecto ¿qué es?
Un anteproyecto es la planificación preliminar de un edificio, donde se esbozan las ideas generales, la distribución de espacios y las consideraciones estéticas y funcionales. Es un paso crucial donde se define el alcance y la visión del proyecto antes de proceder con detalles más específicos.
En ArquinoBC, su visión se une a nuestra experiencia en arquitectura comercial y residencial para formar la base de un proyecto que no solo cumple sino supera las expectativas. Nuestro conocimiento del entorno de Tijuana nos permite asegurar que cada diseño refleje tanto sus sueños como las necesidades prácticas.
Selección del terrreno
La elección del terreno en Tijuana, donde los espacios amplios son cada vez más escasos y las construcciones verticales cada vez más abundantes. Es fundamental realizar un análisis meticuloso para determinar cómo aprovechar al máximo el espacio disponible. Es necesario emplear metodologías avanzadas para evaluar la capacidad de carga del terreno, garantizando proyectos seguros y bien planificados.


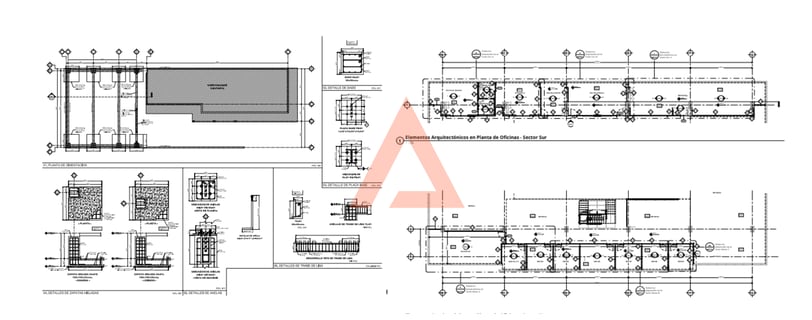
Diseño de la planta: Eficiencia y Estética en Espacios Reducidos
Una planta arquitectónica es un dibujo técnico que muestra la disposición de los espacios dentro de un edificio, visto desde arriba. Incluye muros, ventanas, puertas y, a veces, muebles, cortes, etc., proporcionando una visión clara de cómo se distribuirá y utilizará el espacio.
En ArquinoBC, enfrentamos el desafío de los espacios reducidos como una oportunidad para la innovación en el diseño. Somos expertos en crear espacios que sean tanto estéticamente atractivos como funcionalmente eficientes, optimizando cada metro cuadrado disponible.
Permisos de construcción: Facilitamos el proceso
La obtención de una Licencia de Construcción es esencial en Tijuana. Nosotros nos encargamos de todo el proceso burocrático, asegurando que su proyecto cumpla con todas las normativas locales de manera eficiente. Nuestro equipo gestiona todos los trámites necesarios, permitiéndo se centrarse en los aspectos más inspiradores de su proyecto.
Entendemos que construir en Tijuana requiere de un equipo que domine las normativas locales y comparta una visión de innovación y calidad. Nuestra amplia experiencia en la construcción de proyectos residenciales, comerciales e industriales nos convierte en su socio ideal, comprometidos con alcanzar los más altos estándares de calidad y seguridad.
Si está planeando la casa de sus sueños, desarrollar un espacio comercial o industrial, ArquinoBC está aquí para guiarlo en cada paso del camino. Contáctenos hoy y dé el primer paso hacia la realización de su visión.
